円形組立タンク
パネルをつなぎ合わせる円形型の組立タンクです。
新タイプのパッキンを採用し、パッキンをボルト穴に合わせて貼り付けるだけです。

φ5,000タイプ

φ5,000タイプ 148㎥4段

φ7,000タイプ

φ7,000タイプ 260m³4段

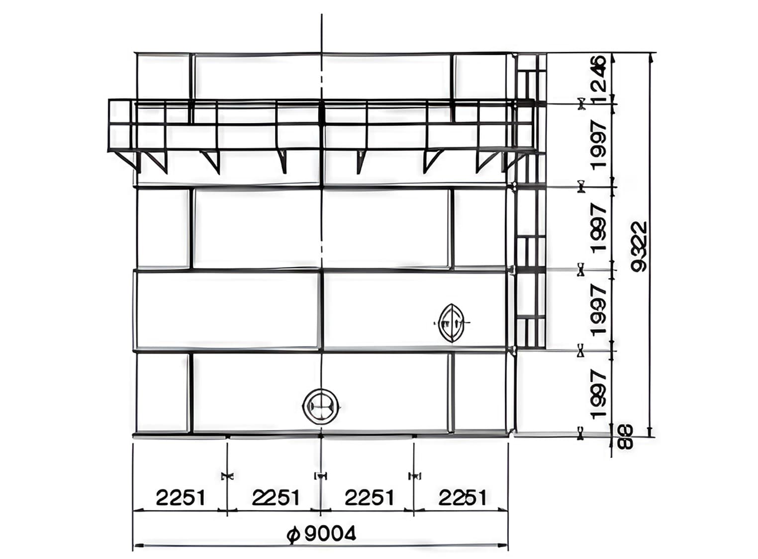
φ9,000タイプ

φ9,000タイプ 565m³5段

φ12,000タイプ

φ12,000タイプ 1,200m³4段

φ12,000タイプ 1,500m³5段

φ12,000タイプ 1,800m³6段
新タイプのパッキンの特徴
- 幅広パッキンだから止水力が向上
- 一体構造だから作業効率が向上
- 組立後の内面接合部シールが不要だから工程が短縮
- シール塗布作業用の高所作業車が不要
- シール材を使用していないから乾燥を待たずに組立後すぐに注水が可能
などの特徴があります。
新タイプのパッキンを採用




組み立て手順




仕様及び寸法表
名称 | 容量(m³) | パネル段数 | 寸法(mm) | 重量(t) | 運搬車両 | 備 考 |
|---|---|---|---|---|---|---|
直径 × 高さ | ||||||
φ5,000タイプ | 148 | 4段 | 5,031 × 8,087 | 15.28 | 10t × 2台 | 側板(L板16枚)・底板3枚 |
φ5,000タイプ | 111 | 3段 | 5,031 × 6,088 | 12.45 | 10t × 2台 | 側板(L板12枚)・底板3枚 |
φ5,000タイプ | 74 | 2段 | 5,031 × 4,088 | 9.5 | 10t × 1台 | 側板(L板8枚)・底板3枚 |
φ5,000タイプ | 37 | 1段 | 5,031 × 2,088 | 6.64 | 10t × 1台 | 側板(L板4枚)・底板3枚 |
φ7,000タイプ | 330 | 5段 | 6,941 × 9,249 | 23.59 | 10t × 3台 | 側板(L板16枚+S板4枚)・底板3枚 |
φ7,000タイプ | 260 | 4段 | 6,941 × 7,249 | 19.72 | 10t × 2台 | 側板(L板12枚+S板4枚)・底板3枚 |
φ7,000タイプ | 215 | 3段 | 6,941 × 6,087 | 17.21 | 10t × 2台 | 側板(L板12枚)・底板3枚 |
φ7,000タイプ | 145 | 2段 | 6,941 × 4,087 | 13.41 | 10t × 2台 | 側板(L板8枚)・底板3枚 |
φ7,000タイプ | 75 | 1段 | 6,941 × 2,088 | 9.6 | 10t × 1台 | 側板(L板4枚)・底板3枚 |
φ9,000タイプ | 565 | 5段 | 9,004 × 9,322 | 31.95 | 10t × 4台 | 側板(L板16枚+S板4枚)・底板4枚 |
φ9,000タイプ | 450 | 4段 | 9,004 × 7,325 | 27.15 | 10t × 3台 | 側板(L板12枚+S板4枚)・底板4枚 |
φ9,000タイプ | 365 | 3段 | 9,004 × 6,078 | 23.17 | 10t × 3台 | 側板(L板12枚)・底板4枚 |
φ9,000タイプ | 250 | 2段 | 9,004 × 4,081 | 18.33 | 10t × 2台 | 側板(L板8枚)・底板4枚 |
φ9,000タイプ | 125 | 1段 | 9,004 × 2,085 | 13.5 | 10t × 2台 | 側板(L板4枚)・底板4枚 |
φ12,000タイプ | 1,800 | 6段 | 12,024 × 16,072 | 98.72 | TR(特車) × 7台 | 側板(L板24枚)・底板5枚 |
φ12,000タイプ | 1,500 | 5段 | 12,024 × 13,477 | 86.91 | TR(特車) × 6台 | 側板(L板20枚)・底板5枚 |
φ12,000タイプ | 1,200 | 4段 | 12,024 × 10,822 | 75.11 | TR(特車) × 5台 | 側板(L板16枚)・底板5枚 |
